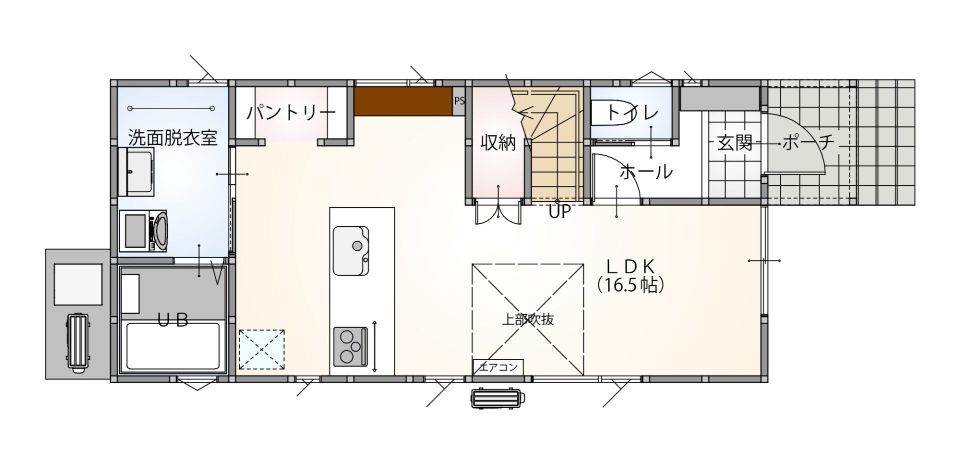
燕市 杣木モデルハウス見学会情報
-
イベント詳細について
-
-
-
\燕市杣木に新モデルハウスがOPEN!/
【賢くお得に建てられて、光熱費も抑えられるお家】をお探しではありませんか?
ぜひ一度、モデルハウスに足をお運びください♪
プラスホームでは、日々の「家計の安定」と「快適な暮らし」、その両方を叶える高性能な住宅をご提供しています!
-
-
-
-
-
-
-
-
\ さらに、このモデルハウスは購入可能! /
「快適さを体感したら、そのままこの家に住みたい…」
そんな思いをすぐにカタチにすることができます!
販売ページはこちら
燕市エリアで家づくりを考えている方、
“本当に快適な家”を見て、感じて、未来の暮らしを想像してみませんか?
皆様のご予約・ご来場をお待ちしております!✨
-
-
その他にも、断熱性能を高めるための
工夫が盛りだくさん!
-
床にはビーズ法ポリスチレンフォーム(EPS)を設置
-
天井吹込みセルロースファイバー
-
サッシは内樹脂のペアガラスを採用
実際のプラスホームの
お客様 H様の
電気代・
ガス代のデータを
ご覧ください。
特別に掲載の許可を頂いております
H様のお住まいの状況…
-
30坪
2階建て -
3任
家族 -
ガス給湯器・
ガスコンロ -
奥様と一歳半の
お子様は
常に在宅
見学会予約
